基于STEAM教育理念的幼儿园建筑设计
Kindergarten Architectural Design Based on STEAM Education Principles
设计教育 | 建筑设计
Design Education | Architectural Design
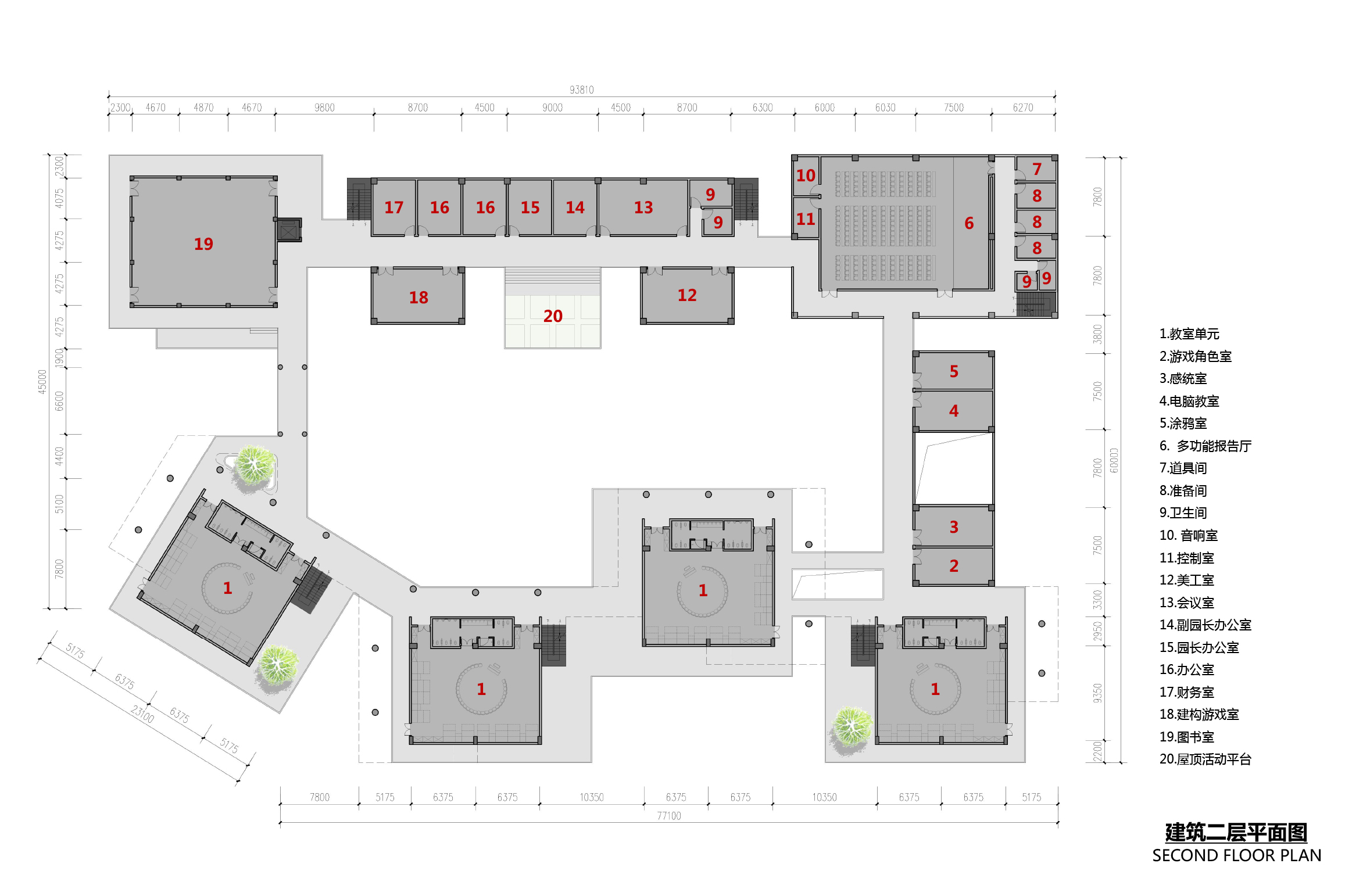
设计以STEAM教育理念为指导,通过对广州市黄埔区一规划幼儿园为建筑设计实践案例,围绕儿童本位、空间复合、互动体验、趣味探索、社交发展及生态智慧六大核心原则展开设计,并结合STEAM教育进一步提出了“空间即教具”的设计理念,将建筑元素转化为STEAM教育的载体,目标为幼儿提供丰富的跨学科学习体验环境。
The design is guided by STEAM education principles, taking a planned kindergarten in Huangpu District, Guangzhou as an architectural case study. Centered on six core principles—child-oriented design, spatial hybridity, interactive experience, exploratory play, social development, and ecological intelligence—the project advances the concept of "space as teaching apparatus." This transforms architectural elements into STEAM education vehicles, aiming to create an enriched interdisciplinary learning environment for young children.
 
        
         
     
               
                   
                   
                   
                   
                   
                   
                   
                   
                   
                   
                   
                   
                   
                   
                   
                   
                   
                   
                  